![]()
三昭堂の二世帯仕様
それぞれの人生を彩る二世帯住宅
各世帯のライフスタイルはそのままに、共に暮らす楽しさを追求した三昭堂の二世帯住宅。ちょうど良い距離感を自然に保つ工夫が随所に盛り込まれています。

二世帯住宅
各世帯の暮らしを育む
何気なく交わされる言葉や、一緒に過ごす時間から生まれる家族のつながり。
親と子、そして孫の三世代が暮らす二世帯住宅は、とても豊かで幸せな暮らしのカタチの一つです。
その中でお互いが気持ちよく過ごすためには、程よい距離感を保つことが大切。
それぞれのライフスタイルを尊重しながら、
共に暮らす楽しさも味わえる住まいをご提案いたします。
![]()
二世帯住宅4つのメリット
-
- 二世帯がそれぞれリフォームしたり家を建てるより、一つにまとめることで建築費用を抑えられます。
- 同居することで税制優遇など受けられる場合があります。 (プラン、諸条件によります)
-
共働きの
強力な味方に!- 保育園や児童クラブなど、子どもの預け先を新たに探す必要がありません。
- 他人には頼みづらい、病気の際のサポートが得られます。
- 自分の親だから安心して子どもを任せられ、仕事に打ち込むことができます。
-
子どもの健やかな
成長が望めます。- 習い事など親の都合で送迎できない時も、祖父母にお願いできれば、子どもへ教育の機会を増やすことができます。
- 祖父母と生活を共にすることで、季節の行事や家庭の文化と自然に触れ合うことができます。
- 親の目の届かない所でも、その場に適した礼儀やマナーを祖父母から学べます。
-
家族の絆が
さらに深まります!- 暮らしの気配を感じることで、各世帯の生活リズムを理解でき、お互いを思いやる気持ちが生まれます。
- 何かあればすぐ手を差し伸べられるので、ちょっとしたことでも助け合えます。
- 孫の顔を近くで見られるので、育児のサポートをしたりなど、子どもの話題を中心とした二世帯間の会話が増えます。
![]()
実例のご紹介
※A~Dを選択すると、各項目までスクロールします
-
A 完全二世帯
(玄関1つ)程よい距離感が「ちょうど良い」住まい
玄関共用部分以外は世帯別の生活空間を確保しています。
プライバシーを保ち気兼ねなく暮らせるタイプです。
-
B 完全二世帯
(玄関2つ)両世帯がマイペースで生活できる完全分離型
すべての生活空間を分け、各世帯が独立して暮らす二世帯住宅です。
生活を完全に分けることができ、プライバシーの確保に優れています。
-
C 共用二世帯
(玄関1つ)家族の繋がりを感じながら、
それぞれの時間を楽しむ適度な独立性を保ち、玄関や浴室、食事空間を共有にすることで
効率的に暮らすことができ、経済的にもメリットがうまれます。
-
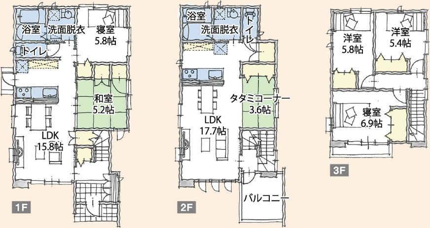
D 共用二世帯
(玄関1つ)限られた土地を有効活用した、
快適な都市型二世帯狭い間口の土地でも対応可能な、玄関以外は分離型の二世帯住宅。
3階に子世帯の居室を設け、各世帯ともゆとりあるLDKを確保しました。
1階の和室はリビングと続き間にできるので家族が集えます。
![]()
親世帯・子世帯
それぞれに合った空間づくり
-
親世帯
落ち着きと安らぎに満ちた 寛ぎの住まい
LDKは深い色合いの木材を用い、落ち着いた雰囲気にまとめました。
広縁つきの和室や、風通しの良い中庭など、
ゆったりと過ごせる空間を備えた寛ぎの住まいです。 -
子世帯
木のぬくもりに抱かれる 居心地の良い住まい
勾配天井で広々としたLDK。梁を見せることで天井にも木の風合いを施し、
木のぬくもりに抱かれるような居心地の良さを演出しました。
また、プライベートな時間も楽しめるように、寝室には書斎を設けています。
![]()
バーチャルツアー
一宮展示場 二世帯住宅
親世帯を1階に、子世帯を2階に置いた風格ある佇まいの二世帯住宅です。
深い色合いの木材で彩られ、落ち着いた雰囲気が魅力の親世帯。
一方、勾配天井を採用した子世帯は、軽やかなトーンでまとめられており、明るく開放感に満ちています。
![]()












将来を見据えたお得な
資金計画が立てやすい。